How condo kitchen preferences have changed in 2025

There are definitely trends when it comes to condo layouts, and one of the most notable ones — as of 2025 — is the layout of the kitchen.
There are many possible reasons, from families moving into more compact spaces, or even — according to one interior designer we spoke to — a new fad for home cooking among Singaporeans.
Whatever the case, the kitchens in current layouts have changed quite a bit over the decades, and some may even say we've turned back the clock:
Lentor Central Residences is widely considered to have the best layouts among the recent batch of new launches. Let's take a look at their kitchens, and see what they have in common for both small and large units:
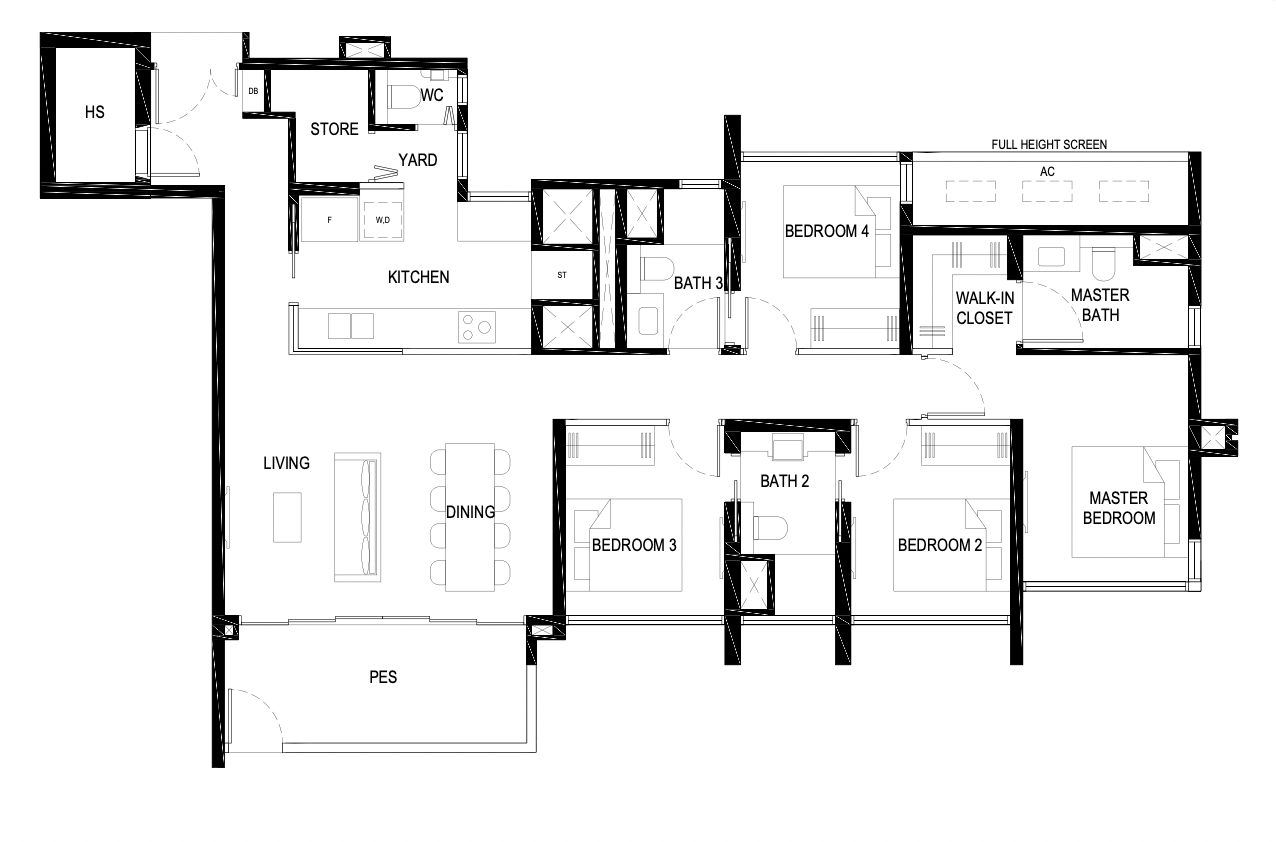
This is the larger 4-bedroom layout. Notice the kitchen forms a U-shaped nook, which has the added benefit of a nearby storage room.
This is the smaller 2-bedder layout. Notice that despite the reduction in size, the kitchen keeps to the same U-shaped layout; the developer knew what works and kept it uniform.
Now look at how Parktown Residence, which launched close to Lentor Central Residences and also sold fast, has similar principles:
Again, a nook kitchen in the 3-bedroom layout. Meanwhile in ELTA, in the Clementi area, we see the same kitchen trend for this 2-bedroom layout:
We're sure you get the idea: this is the dominant style of kitchen among the recent batch of launches, and likely what we'll see going forward. This is in contrast to some earlier kitchen designs, where an open kitchen was considered trendier:
Notice the kitchen seems to "float" in the layout without well-defined walls or the current nook shape. Another common trend, which also partly lent itself to more open concepts, is the L-shaped kitchen, or kitchens that pack the sink, cabinetry, etc. along just one wall of the unit. In 2018, open-concept kitchens have also been the default from HDB for public housing.
The nook kitchen is considered practical for several reasons, and these aren't theories: ask a professional cook, and they'll explain why the U-shaped layout is almost universal in a "serious" kitchen:
A U-shaped kitchen naturally supports the "kitchen work triangle" concept, where the stove, sink, and refrigerator are positioned for easy movement. This minimises unnecessary steps, making cooking more efficient. The three-sided layout also provides ample counter space, allowing multiple areas for preparing your vegetables, meats, mixers, etc.
A nook kitchen can have cabinets and drawers on multiple sides, which maximise the storage space. This matters when you have a lot of crockery, need different cabinets for seasonings, medicine (many Singaporean households like to keep medication in the kitchen), wine bottles, etc.
The U-shaped nook kitchen allows multiple people to work in the kitchen, on separate countertops. In restaurants that means multiple cooks don't get in each other's way. In Singapore home life, we may not all be cooking, but we tend to use the kitchen for different purposes:
Some households use the kitchen as a makeshift dining room, for example, so a person can eat on one side while a cook uses another. Or as is a familiar scene in Singapore, children do homework on one of the counters, while someone else cooks on the others.
This is vital if you intend to do heavy cooking, especially with a wok. With open kitchens, a lot of homeowners have now discovered the inherent drawback that — after a bit of frying — you can find a thin sheen of oil across the floor, going out to the living/dining area.
Some home cooks also dislike through-traffic (i.e., lots of people wandering through the kitchen from various entry points), which can happen in big families or on occasions like reunions.
This isn't just inconvenient, it's potentially dangerous. In a nook kitchen where traffic is coming from a fixed entry point, there's less risk of someone wandering into you when you're carrying hot food.
A nook kitchen fits neatly into a corner or alcove, leaving more room for living and dining areas. This is crucial in small units like 2-bedders, where space is at a premium.
The kitchen being enclosable also matters more for a small unit: a huge 4-bedder or 5-bedder has more room for odours and heat to dissipate, but these factors are more concentrated in small spaces.
Visually, keeping the kitchen tucked into a dedicated space means the living and dining areas feel more open and less cluttered. This makes a small unit feel larger and more organised.
So going forward, if our homes get smaller, we may see this trend persist.
As an aside, an interior designer we spoke to noted that the prevalence of reality TV shows like MasterChef Singapore seems to have resulted in more home cooking interest, and fussier kitchen setups. She noted that in the recent few projects, clients have mentioned issues that weren't raised before, such as heavier home-baking needs, or even needing specialised prep stations.
If more Singaporeans are interested in serious home cooking, then the more pantry-like open kitchens may fall further into disfavour. While they're great for a minimalist look, they lack the practicality of enclosable nook kitchens.
[[nid:715728]]
This article was first published in Stackedhomes.